Проект дома ДУБЛИН

 6,691,200.00

(Стоимость строительства дома по проекту в чёрном ключе)

Общая площадь

Жилая площадь

Гараж

Цоколь

Количество жилых комнат

9

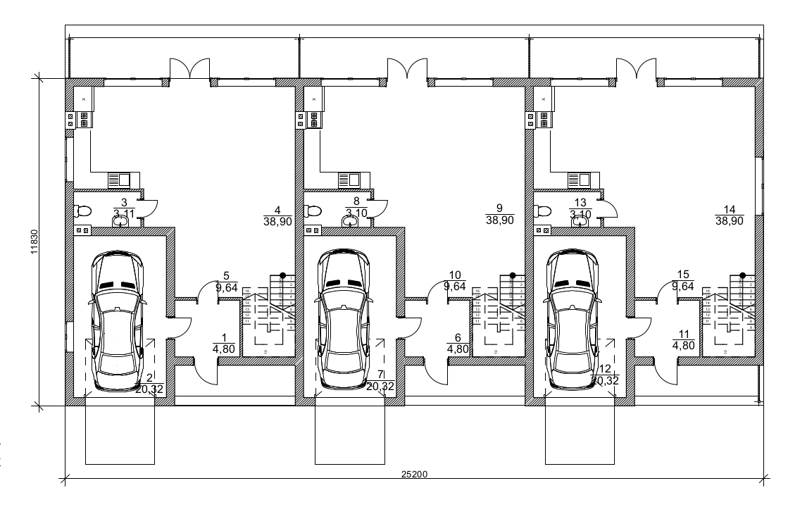
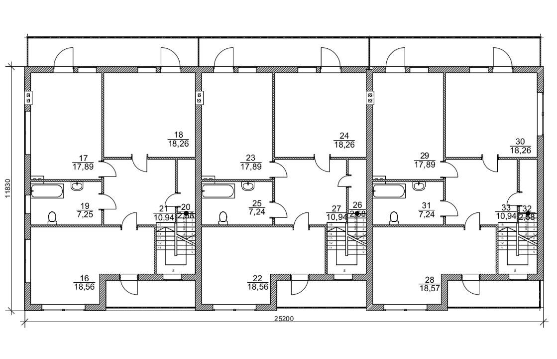
Планы этажей

1эт 2эт

Реализации

Задать вопрос: