Стоимость строительства дома по проекту «Орегон» составляет 1 774 800 руб. (в чёрном ключе)
ПЛОЩАДЬ ЗАСТРОЙКИ — 134,1 м2
ОБЩАЯ ПЛОЩАДЬ — 132,4 м2
ЖИЛАЯ ПЛОЩАДЬ — 74,2 м2
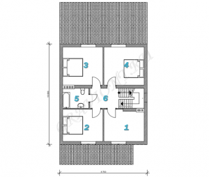
План 1 этажа План 2 этажа
| № | 1 ЭТАЖ | Площадь, м2 | № | 1 ЭТАЖ | Площадь, м2 |
|---|---|---|---|---|---|
| 1 | Тамбур | 6,4 | 1 | Кладовая | 12,2 |
| 2 | Топочная | 7,2 | 2 | Спальня | 12,8 |
| 3 | Гостевая комната | 11,2 | 3 | Спальня | 15,2 |
| 4 | Холл | 6,6 | 4 | Спальня | 15,2 |
| 5 | Сан.узел | 4,4 | 5 | Сан.узел | 5,2 |
| 6 | Кухня | 10,6 | 6 | Холл | 5,8 |
| 7 | Гостевая | 19,8 |
ФАСАДЫ








